|
L’appartement est situé
à 1 km de l'IUT Grillenbreit dans le paisible quartier des maraîchers,
dans une maison à colombage du début du 20ème siècle comportant deux appartements.
Le
Kirchberg et le Johansberg, tous
deux proposant des colocations.
On y accède par une entrée individuelle le long d'une coursive commune exposée côté
sud.
Ces appartements peuvent aussi être loués en formule Gîtes en période de vacances estivales
ou de marchés de Noël.
Le stationnement
est gratuit dans la rue.
ATOUTS
Vous êtes
à deux kilomètres du centre ville, à cent mètres d'une grande surface
(E. LECLERC), à un kilomètre de la
piscine
AQUALIA
Pharmacie, centre médical, accès autoroute (vers
Strasbourg ou Mulhouse), arrêt de bus à proximité!
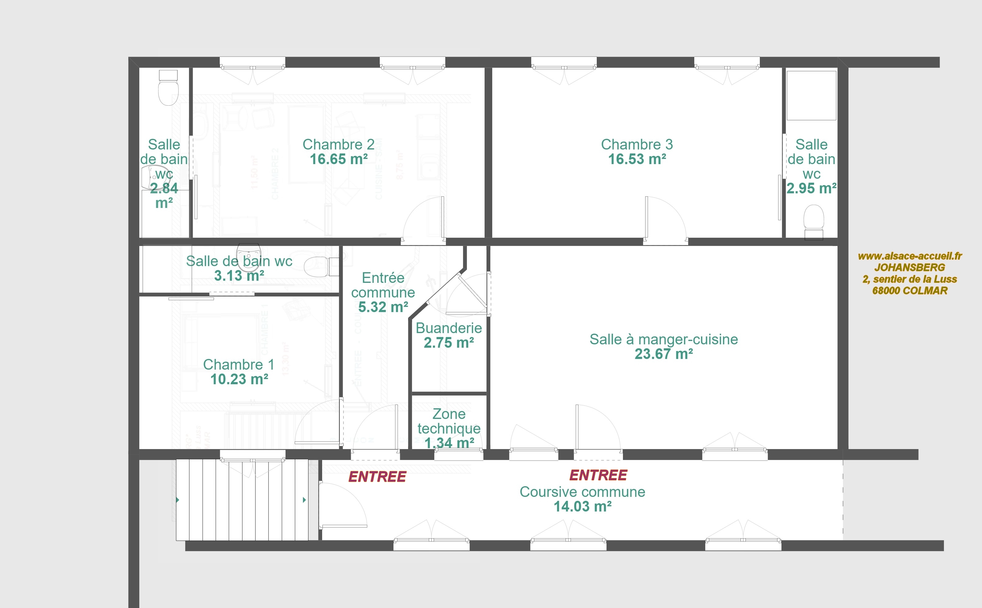
LE JOHANSBERG
Il est au rez-de-chaussée sur-élevé (8 marches), composé de trois chambres avec salles-de-bains wc
dans toutes les chambres, d’un espace-cuisine dans le séjour commun.
La capacité d'accueil est de trois personnes
(étudiants, stagiaires, touristes ...) et ceci en colocation.
Dans la cour, vous
pourrez partager un salon de jardin ou organiser un barbecue.
Dans le jardin arboré vous y trouverez sûrement un banc pour une lecture à
l'ombre...
|
|


CHAMBRE 1 (13m²)

Cette chambre, avec poutres apparentes, est dotée
d’un lit individuel (120x200), de chevets, d'un bureau, d'une chaise et
d’une étagère.
La fenêtre, donnant sur le jardin côté sud, est équipée de volets traditionnels
en bois.
Le revêtement au sol est une moquette type dalles bleue marine.
La
salle-de-bains wc privée est équipée d'une porte coulissante et dispose
sur une surface de 3m² d’une douche (90x90), d'un lavabo (eau
chaude et froide), d'un wc, d’une ventilation automatique, d'un sèche-serviette et d'une armoire de toilette.
-----------------------------------------------------------------------
CHAMBRE 2 (20 m²)

Cette chambre, avec poutres apparentes, est dotée d’un lit double, d'un
bureau, d'une chaise et d’une armoire. Les deux fenêtres donnent sur le
nord et sont équipées de volets roulants électriques.
La salle-de-bains privée est équipée d'une porte coulissante et
dispose sur une surface de 3m² d’une douche (90x90), d'un lavabo
(eau chaude et froide), d'un wc, d’une ventilation automatique, d'un
sèche-serviette.


La salle-de-bains privée (3 m²) est séparée de la chambre par une porte coulissante et
dispose sur une surface de 3m² d’une douche (90x90) avec rideau, d'un lavabo
(eau chaude et froide) avec tablette, d'un wc, d’une ventilation automatique, d'un
radiateur.

-------------------------------------------------------------------
CHAMBRE 3 (20 m²)
Cette chambre est dotée d’un lit
double 140x190, de deux chevets, d'une commode et d’une armoire.
Les fenêtres, donnant sur le nord, sont équipées de volets roulants
électriques.
Le revêtement au sol est un PVC.

 |